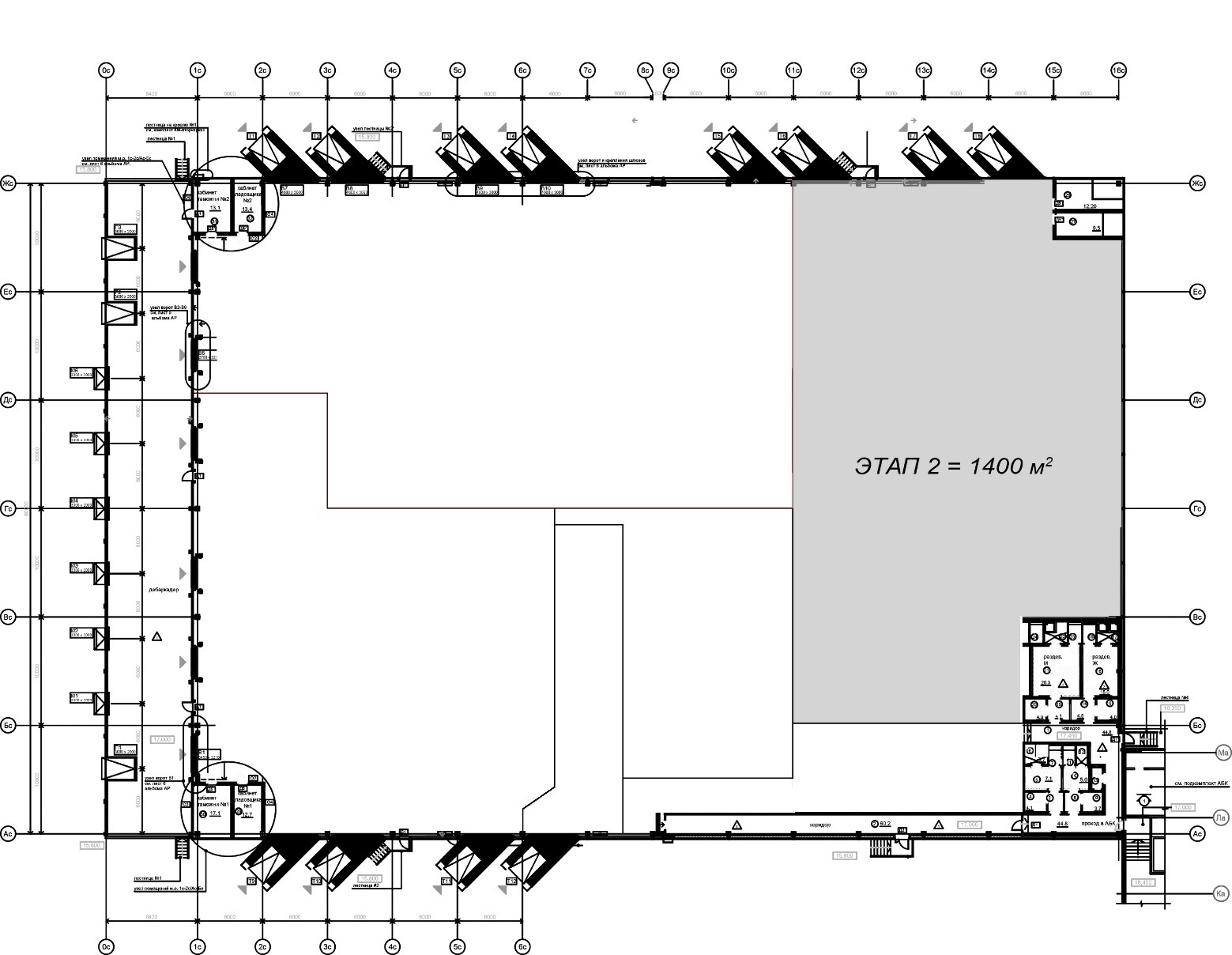
Аренда складского помещения 1400 м2 в Белоострове с готовой инфраструктурой терминала (ТТЛК "Северные ворота")
Стоимость по запросу
Санкт-Петербург, поселок Белоостров, Новое шоссе, 53
Характеристики
Описание
Предлагается к аренде отапливаемый склад класса А площадью 1400 кв.м на территории транспортно-логистического комплекса «Северные Ворота». Объект расположен в Белоостровской логистической зоне, в непосредственной близости от трассы Скандинавия и Западного скоростного диаметра, что обеспечивает быстрый доступ к КАД и портовым терминалам Санкт-Петербурга.
Характеристики складского помещения. Высота потолков достигает 12 метров. Помещение оборудовано эстакадой и пандусом, для погрузочно-разгрузочных работ доступны трое ворот с доковым оборудованием. Внутри предусмотрены санитарный узел, мокрая точка и два отдельных кабинета для сотрудников. Отопление поддерживает постоянный температурный режим, необходимый для хранения широкого спектра грузов. Вентиляция естественная. Здание соответствует стандартам класса А.
Условия аренды. Ставка составляет 850 рублей за кв.м в месяц, включая НДС. Площадь может быть разделена на секции согласно требованиям арендатора. В стоимость включены охрана территории в круглосуточном режиме и пользование наземной парковкой для автомобилей.
Инфраструктура комплекса. Арендаторам доступен полный спектр логистических услуг, включая ответственное хранение, терминальную обработку грузов и складской учет.
Адрес объекта: 197730, город Санкт-Петербург, Курортный район, поселок Белоостров, Новое шоссе, дом 53.
Планировки
Расположение
Петровский строитель — ведущая консалтинговая компания полного цикла в сегменте коммерческой недвижимости в России
Успешная реализация любого проекта начинается с профессионального анализа, формирования детальной концепции и финансово-экономического обоснования.