Получить консультацию

Апарт-отель «Политехнический»

680 000 000 ₽

Санкт-Петербург, ул. Политехническая, 24

Характеристики

Тип здания
Гостиницы
Класс
C
Общая площадь
6248 м²

Описание

Закрытая продажа здания с земельным участком, под апарт-отель. Конфигурация здания с множеством изолированных помещений идеально подходит для редевелопмента в апарт-отель. Предварительный расчет позволяет разместить до 80 номеров различной категории общей площадью более 3 400 м/кв. + 1100 м/кв. торговой площади на цокольном этаже.

ИНФОРМАЦИЯ ПО ЗДАНИЮ:

Площадь здания: 6 248,9 м/кв.
Этажность: цоколь+ 3 этажа
Кадастровый номер здания:78:36:0005365:1008
Техническое состояние здания: в соответствии с требованиями «Правил обследования и мониторинга технического состояния зданий и сооружений» ГОСТ Р 31937-2011оценивается, как работоспособное. Требуется капитальный ремонт здания. По результатам расчета физический износ здания составляет 59 %.

КГИОП:

  1. Здание находится в границах единой зоны регулирования застройки и хозяйственной деятельности ЗР З (10)03, расположенной за пределами исторически сложившихся центральных районов Санкт-Петербурга;
  2. Здание не является объектом культурного наследия (памятником);
  3. Здание признано «объектом охраняемой среды» и относятся к «историческим»;
  4. Проект реконструкции требует получения заключения КГИОП;
  5. Процедура согласования является стандартной для объектов подобного типа в Санкт-Петербурге.

ИНФОРМАЦИЯ ПО ЗЕМЕЛЬНОМУ УЧАСТКУ:
ВРИ:
Гостиничное обслуживание(4.7), Общежития (3.2.4)
Площадь участка: 8 560 м/кв.
Кадастровый номер участка: 78:36:0005365:1719
Территориальная зона: Земельный участок расположен в территориальной зоне ТД1-2, общественно-деловая зона объектов многофункциональной общественно-деловой застройки и жилых домов, расположенных на территории периферийных и пригородных районов Санкт-Петербурга, с включением объектов инженерной инфраструктуры в подзонеТД1-2_2и частично в границах объединенной зоны охраны объектов культурного наследия.

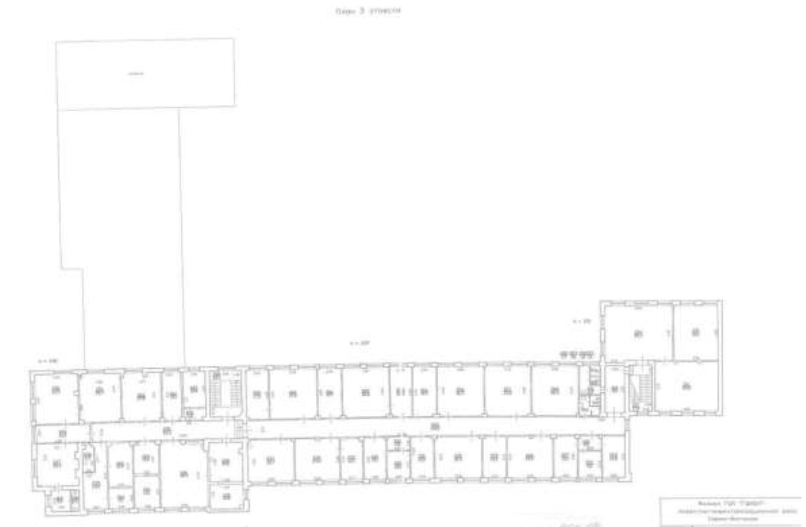
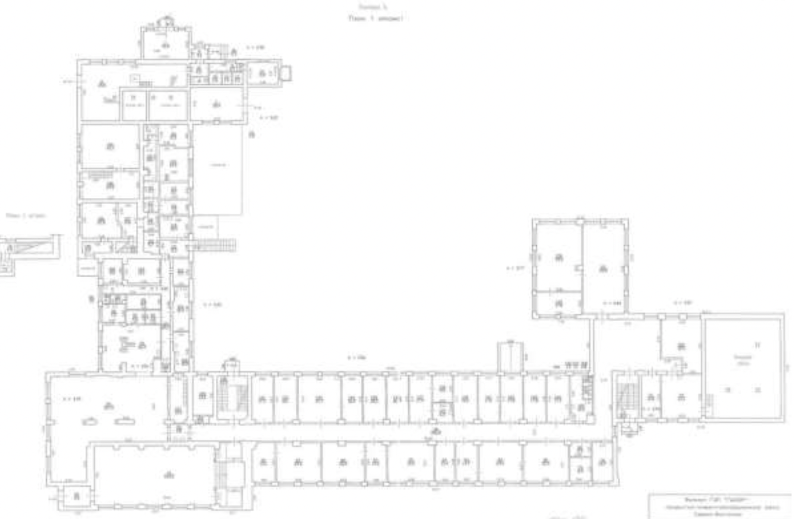
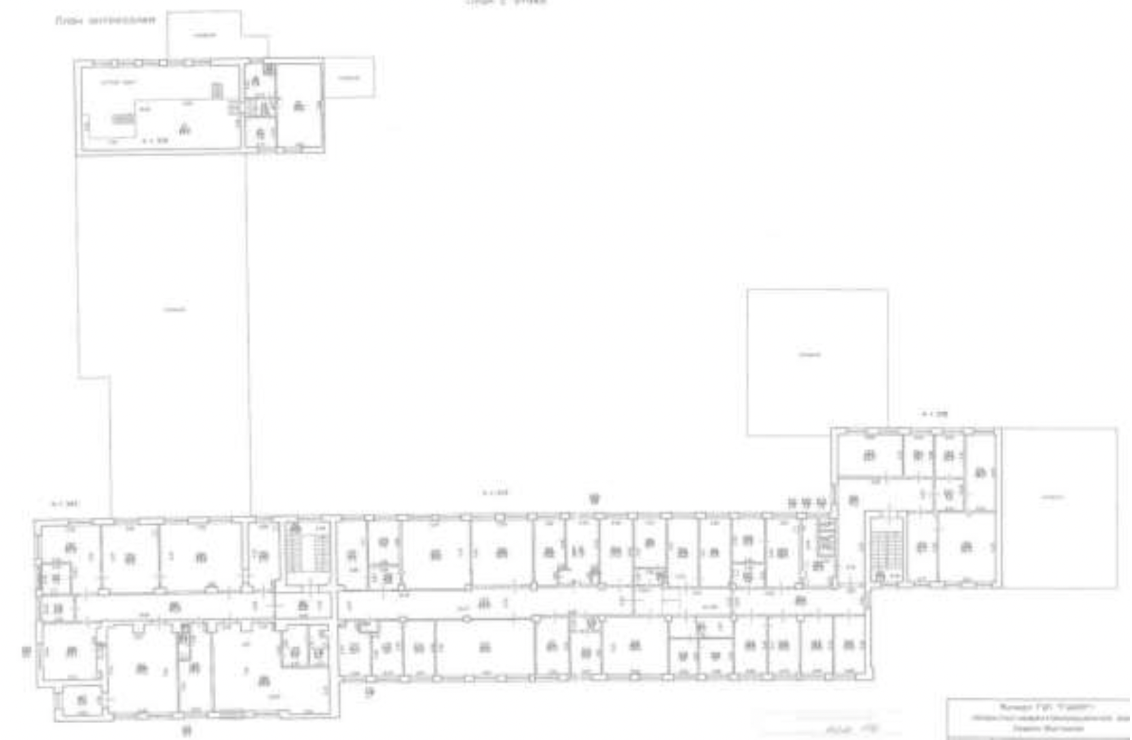
Планировки

План цокольного этажа
ID
10
Этаж
Цокольный
Отделка
-
Стоимость
По запросу
Общая площадь
-
Оставить заявку
План первого этажа
ID
11
Этаж
Первый
Отделка
-
Стоимость
По запросу
Общая площадь
-
Оставить заявку
План второго этажа
ID
12
Этаж
Второй
Отделка
-
Стоимость
По запросу
Общая площадь
-
Оставить заявку
План третьего этажа
ID
13
Этаж
Третий
Отделка
-
Стоимость
По запросу
Общая площадь
-
Оставить заявку

Расположение

img

Петровский строитель — ведущая консалтинговая компания полного цикла в сегменте коммерческой недвижимости в России

Успешная реализация любого проекта начинается с профессионального анализа, формирования детальной концепции и финансово-экономического обоснования.

Подробнее о Петровском строителе

Новости

Все новости